Bremen

Wohnen in Schwachhausen – Familienfreundliches Reihenendhaus in charmanter Lage

Dieses gepflegte Reihenendhaus befindet sich in ruhiger und gewachsener Wohnlage von Bremen-Schwachhausen und bietet eine großzügige Wohnfläche von ca. 144 m² auf einem ca. 400 m² großen Grundstück. Das im Jahr 1937 errichtete Haus überzeugt durch eine durchdachte Raumaufteilung sowie vielseitige Nutzungsmöglichkeiten.

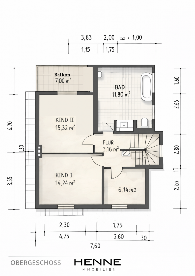
Das Haus verfügt über insgesamt 6 Zimmer, darunter mehrere flexibel nutzbare Wohn- und Schlafräume, zwei Badezimmer sowie ein separates Gäste-WC. Die Ausstattung umfasst unter anderem Parkettboden, eine Einbauküche, einen Keller, einen Tresor sowie einen Abstellraum. Eine Terrasse mit ca. 17 m² und der angrenzende Garten bieten zusätzlichen Wohnkomfort und Platz zur Erholung.

Zum Objekt gehören zwei Stellplätze, bestehend aus einer Garage sowie einem Außenstellplatz. Die Beheizung erfolgt über eine Öl-Heizung, der Energieausweis liegt vor (Bedarfsausweis, Energieeffizienzklasse G).

Das Haus ist derzeit vermietet und erzielt monatliche Mieteinnahmen in Höhe von ca. 2.036 € zzgl. Nebenkosten. Die Verfügbarkeit ist ab Oktober 2026 vorgesehen, wodurch sich sowohl für Kapitalanleger als auch für Eigennutzer mit mittelfristiger Planung eine interessante Perspektive ergibt.

Grunddaten

Ort
28213 Bremen
Baujahr
1937
Verkaufstatus
Reserviert

Flächenaufstellung

Wohnfläche
ca. 144 m²
Nutzfläche
ca. 40 m²
Grundstücksfläche
ca. 401 m²
Anzahl Zimmer
6
Anzahl Badezimmer
2
Anzahl Balkon / Terrasse
1
Balkon/Terrassenfläche
ca. 17 m²
Anzahl Stellplätze
2

Raumangebot und Ausstattung

Verfügbar ab
Oktober 2026
Vermietet
Ja
Baujahr
1937
Verkaufstatus
Reserviert
Balkon
Ja
Stellplatz
Ja
Ausstattung
Standard
Dusche
Ja
Bad mit Badewanne
Ja
Einbauküche
Ja
Parkett
Ja
Garage
Ja
Parken im Freien
Ja
Garten
Ja
Keller
Ja
Abstellraum
Ja
Gäste WC
Ja

Kaufpreis

Kaufpreis
659.000 €
Kaltmiete
1.833,80 €
Nebenkosten
312,20 €
Provisionspflichtig
Ja
Käuferprovision
2,00 % (inkl. 19% MwSt.) vom Käufer
Provisionshinweis
Die Maklercourtage beträgt insgesamt 4,00 % des beurkundeten Kaufpreises inkl. gesetzlicher Mehrwertsteuer. Die Courtage wird gemäß § 656c BGB zwischen Käufer und Verkäufer hälftig geteilt und beträgt für jede Partei 2,00 % inkl. 19 % MwSt. Die Courtage ist mit Abschluss des notariellen Kaufvertrages verdient und fällig.

Lage

Die Lage in Bremen-Schwachhausen zeichnet sich durch eine sehr gute Infrastruktur, eine hohe Wohnqualität sowie eine hervorragende Anbindung an den öffentlichen Nahverkehr und das Stadtzentrum aus. Einkaufsmöglichkeiten, Schulen, Kindergärten und Grünflächen befinden sich in unmittelbarer Umgebung.

Dieses Reihenendhaus stellt eine attraktive Gelegenheit dar, eine solide Immobilie in einer der gefragtesten Wohnlagen Bremens zu erwerben.

Energie & Heizung

Energieausweisliegt vor
Energie­ausweistypBedarfsausweis
Erstellt am02.08.2016
Gültig bis01.08.2026
PrimärenergieträgerÖl
EnergieeffizienzklasseG
Endenergiebedarf Strom218 kWh/(m²·a)
EnergieeffizienzklasseG
HeizungsartÖl-Heizung

EXPOSÉ anfordern

Gerne übersenden wir Ihnen unser ausführliches Exposé mit einer detaillierten Beschreibung des Objektes samt Planunterlagen per E-Mail und auf Wunsch zusätzlich per Post.